岳阳哪里有销售HVH气动黑水调节阀的厂家
岳阳哪里有销售HVH气动黑水调节阀的厂家
产品价格:¥定价销售(人民币)
  • 规格:HVH
  • 发货地:上海
  • 品牌:
  • 最小起订量:1只
  • 诚信商家
    会员级别:金牌会员
    认证类型:企业认证
    企业证件:通过认证

    商铺名称:上海昊沃阀门有限公司

    联系人:吕经理(先生)

    联系手机:

    固定电话:

    企业邮箱:765761533@qq.com

    联系地址:上海市星云经济园区真北路3199号

    邮编:201900

    联系我时,请说是在泵阀网上看到的,谢谢!

    商品详情

      哪里有销售HVH气动黑水调节阀的厂家


      HVH气动黑水调节阀产品简介:
      属高压角形黑水或灰水专用调节阀,德士古煤气化工艺系统中的一种关键设备,是煤化工装置必不可少的重要设备之一,气动黑水调节阀,气动灰水调节阀长期在进出口压差很大的气、液、固三相流介质中使用。坚硬的煤粉有强烈的冲蚀作用,热煤浆又有很强的腐蚀性。它主要是应用于气化工段的闪蒸和水循环系统,主要作用是对气化炉和碳洗塔排出的黑水进行闪蒸,以便于回收灰水和热量。黑水调节阀主要是对于在高压差工况下并且腐蚀性很强的气、液、固三相流介质进行流量和压力控制。
      设计特点:
      1. 流体:设计工艺上解决了旋涡难题,并保证了流体畅通。
      2. 共振套:设计共振套有效的解决了高压差产生的共振。
      3. 共振套工艺:共振套内腔设计了刮刀,有效的刮去了阀芯表面的结焦,防卡死功能。
      4. 阀杆:防旋涡设计,阀杆与阀芯采用机械连接。
      5. 阀芯与阀座:阀芯与阀座采用喷涂金刚石有效的解决了闪蒸、颗粒冲刷、气蚀等苛刻问题。
      流道设计:进出口流道及变径区采用了热压式镶嵌喷涂金刚石解决了进出口流道冲刷、闪蒸、颗粒冲刷、 气蚀、硬裂等技术问题。
      6. 维护:设计结构维护拆装简便。
      7. 黑水调节阀适于在大压差、强腐蚀、冲刷严重的气、液、固三相流介质中长期使用。
      HVH气动黑水调节阀产品性能参数:
      1. 压力等级:Class150~Class2500;
      2. 口 径:NPS1″~NPS28″;
      3. 密封等级:ANSI B16.104 VI无泄漏等级;
      4. 防爆等级:ExdIICT4、ExiaIICT4;
      5. 流量特性:直线、等百分比(对数)抛物线及快开等;
      6. 传到方式:气动、电动等;
      7. 连接方式:法兰、焊接、卡箍、螺纹等。
      产品零部件材料:
      1. 阀体:WCB、WC6-12、4130、CF8、 CF8M双相钢等;
      2. 阀杆:17-4PH、304、316
      3. 阀芯:不锈钢整体喷涂金刚石;
      4. 阀座:不锈钢整体喷涂金刚石;
      5. 变径: WCB、WCB-12、304、316L 双相钢通道内衬金刚石。
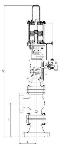
      HVH AS HSA气动黑水调节阀 AS气动灰水调节阀产品外形与结构尺寸:

      规格

      L

      H1

      H2

      1″×2″

      160

      300

      1100

      2″×3″

      180

      330

      1200

      3″×6″

      220

      430

      1600

      4″×12″

      300

      530

      1800

      6″×18″

      340

      600

      2400

      8″×24″

      360

      800

      2200

      10″×28″

      380

      930

      2380


    0571-87774297