黔南哪里有销售SSDF-I水上式底阀的厂家
黔南哪里有销售SSDF-I水上式底阀的厂家
产品价格:¥定价销售(人民币)
  • 规格:SSDF-I
  • 发货地:上海
  • 品牌:
  • 最小起订量:1只
  • 诚信商家
    会员级别:金牌会员
    认证类型:企业认证
    企业证件:通过认证

    商铺名称:上海昊沃阀门有限公司

    联系人:吕经理(先生)

    联系手机:

    固定电话:

    企业邮箱:765761533@qq.com

    联系地址:上海市星云经济园区真北路3199号

    邮编:201900

    联系我时,请说是在泵阀网上看到的,谢谢!

    商品详情

      哪里有销售SSDF-I水上式底阀的厂家


      SSDF-I水上式底阀产品简介:
      该阀是水上式底阀的更新换代产品,作底阀时可安装在进水管露在水面上立管的转弯处,作止回阀用时,可代替弯头装在泵出水口的90度转弯处。本阀摩擦阻力小,安装简单,维修方便,可在水上安装维修,其密封性能好,可达到滴水不漏,即降低了供水运行费用双节能5-7%左右。
      主要适于石油、化工、纺织、 印染、冶金、矿山、排灌等行业的水泵配套使用。
      可在泵前用,代替底阀。可在泵后用,代替止回阀。
      工作原理:
      本阀由阀体、阀瓣、活塞杆、阀盖、定位柱等零件组成。
      启动水泵前先向吸水管中充满液体,使水泵有足够有吸力,将液体吸入阀门,打开活塞阀瓣,从而进行供水作业,当停泵后,阀瓣在液压力和本身重力作用下关闭,而阻止液体回到泵前。
      SSDF-I水上式底阀设计特点:
      1) 使用寿命、有故障,处理也极为方便。
      2) 自吸性能可靠,确保下一次起泵的顺利进行。
      3) 本产品连接法兰全部符合GB规定,通用性能好。
      4) 其密性能独特,并设有阻尼装置,对水锤危害有一定的减缓作用。
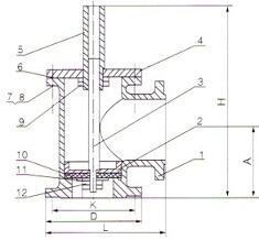
      SSDF-I水上式底阀产品外形与结构尺寸:

      序号

      1

      2

      3

      4

      5

      6

      7

      8

      9

      10

      11

      12

      名称

      阀体

      阀瓣

      阀杆

      阀盖

      阀杆套

      密封圈

      螺栓螺母

      螺母

      密封圈

      压板

      螺母

      连接尺寸:

      公称通径

      D

      D1

      A

      B

      DN(mm)

      0.6MPa

      1.0MPa

      1.0MPa

      1.6MPa

      50

      140

      160

      110

      125

      100

      100

      65

      160

      180

      130

      145

      110

      110

      80

      185

      195

      150

      160

      120

      120

      100

      205

      215

      170

      180

      130

      130

      150

      260

      280

      225

      240

      150

      150

      200

      315

      335

      280

      295

      190

      190

      250

      370

      390

      335

      350

      240

      240

      300

      435

      440

      395

      400

      290

      290

      350

      485

      500

      445

      460

      340

      340

      400

      535

      565

      495

      515

      390

      390

      450

      590

      615

      550

      565

      440

      440

      500

      640

      670

      600

      620

      490

      490

      600

      755

      780

      705

      725

      590

      590

      安装说明:
      安装要求:安装在水泵吸水管的垂直管与水平管的转弯处,安装时应保证其垂直状态。
      启动:启动前向水平管中充满水之后迅即启动,造成吸水管内半真空状态,将水吸入竖直管,以完成泵水过程。吸程过大时需要重复几次充水启动,以后停泵,开泵前不必充水。
      检修:一般情况下使用不必检修。当需要检修时,只须将水上式底阀上面的阀盖打开,更换橡胶垫即可,检修后仍按启泵方法启动。

    0571-87774297