SK-EC应急排烟窗监控器-消防风机机电一体化监控系统|解决方案
SK-EC应急排烟窗监控器-消防风机机电一体化监控系统|解决方案
产品价格:(人民币)
  • 规格:完善
  • 发货地:西安
  • 品牌:
  • 最小起订量:1套
  • 诚信商家
    会员级别:钻石会员
    认证类型:企业认证
    企业证件:通过认证

    商铺名称:西安亚川电力科技有限公司

    联系人:仵经理(小姐)

    联系手机:

    固定电话:

    企业邮箱:13891834587@163.com

    联系地址:西安市翠花南路60号

    邮编:710061

    联系我时,请说是在泵阀网上看到的,谢谢!

    商品详情

      消防风机机电一体化监控系统

      消防风机机电一体化监控系统介绍

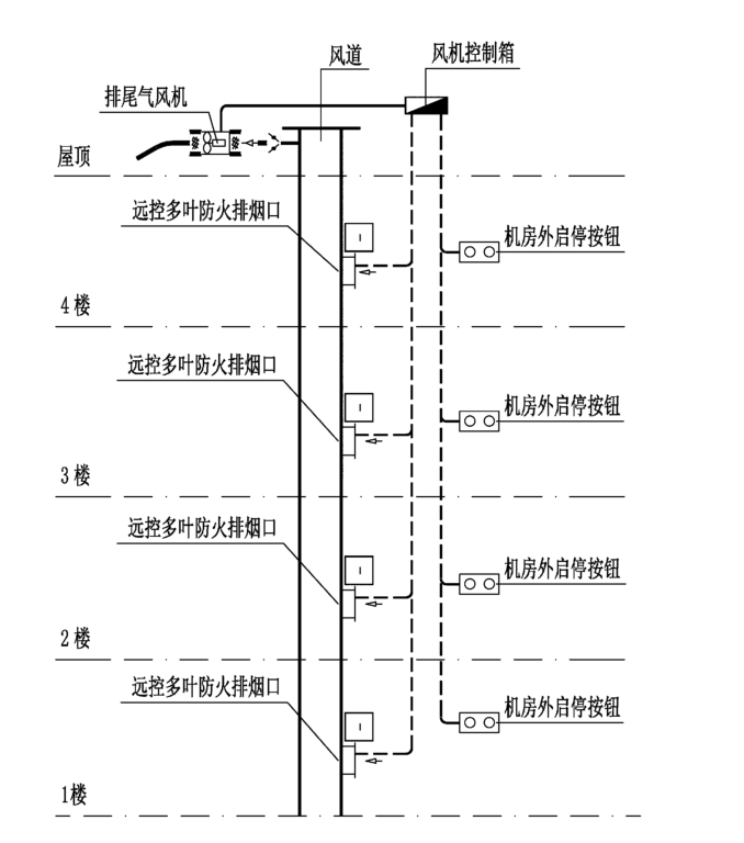
      消防风机机电一体化监控系统(防排烟应急自控系统)。设计安装该系统后,大幅提高防烟排烟系统的智能化程度及稳定可靠性,有效解决火灾状态下火灾自动报警和防烟排烟系统故障或失效后,消防风机不能启动的问题,同时为火灾情况下及时排出火灾的烟气和热并控制烟气蔓延、人员安全疏散及消防提供有力保障。

      消防风机机电一体化监控系统主要由防排烟应急监控器联锁隔离器()风空气质量探测器余压探测器风量/风压探测器排烟专用探测器电动开窗器手动控制器CO浓度探测器等全部或部分设备组成。

      消防风机机电一体化监控系统相应产品

      SK-SE防排烟应急监控器

      SK-EC应急排烟窗监控器

      SK-FM消防电动开窗机

      SK-SD排烟专用探测器

      SKYT余压探测器

      SK-LS联锁隔离器

      SK-AQ送(补)风空气质量探测器

      SK-FL风量/风压探测器

      SK-HC手动控制器

      SKCO CO探测器

      了解更多的产品信息和价格,请致电。

      联系人:仵经理

      电话:13891834587(微信同号)

      Q Q704151787

      竭诚为您提供全面的解决方案和产品报价服务!!!

      消防风机机电一体化监控系统构成

      消防风机机电一体化监控系统是一个集数据采集、处理、控制、通信及显示于一体的综合系统。它主要由消防风机、智能控制器、传感器、执行机构、通信网络和监控中心等部分组成。其中,消防风机作为关键设备,负责在火灾发生时迅速启动,实现排烟或送风功能;智能控制器则是系统的大脑,负责接收传感器信号,进行逻辑判断,并发出控制指令;传感器则遍布系统各处,实时监测温度、烟雾浓度等环境参数;执行机构则根据控制器的指令,执行相应的动作,如开启或关闭风门、调整风机转速等;通信网络则负责各组件之间的数据传输与通信;监控中心则是对整个系统进行远程监控和管理的核心。

      消防风机机电一体化监控系统工作原理

      当火灾发生时,烟雾和高温等环境参数会触发安装在建筑内的传感器。传感器将采集到的数据实时传输给智能控制器。智能控制器通过内置的逻辑判断程序,对接收到的数据进行处理,并判断是否需要启动消防风机。一旦判断需要启动,智能控制器将发出控制指令,通过通信网络传输给执行机构。执行机构接收到指令后,会迅速开启风门、调整风机转速等,实现排烟或送风功能。同时,监控中心也会接收到相关报警信息,并显示在监控屏幕上,供值班人员查看和处理。

      消防风机机电一体化监控系统技术优势

      消防风机机电一体化监控系统相比传统消防系统具有显著的技术优势。首先,该系统实现了机电一体化设计,将风机、控制器、传感器等组件高度集成,大大简化了系统结构,提高了系统的可靠性和稳定性。其次,该系统采用了先进的传感器技术和智能控制技术,能够实时监测环境参数并做出准确判断,提高了系统的响应速度和准确性。此外,该系统还具备远程监控和管理功能,能够实现对消防风机的远程控制和故障诊断,降低了维护成本和人力成本。最后,该系统与智慧城市相配套,能够与其他消防系统实现信息共享和联动控制,形成更加完善的消防安全防护体系。

      消防风机机电一体化监控系统 应用案例

      消防风机机电一体化监控系统已经广泛应用于各类高层建筑、商业中心、医院、学校等场所。以某高层写字楼为例,该建筑配备了完善的消防风机机电一体化监控系统。在一次模拟火灾演练中,当火灾烟雾触发传感器后,系统迅速启动消防风机进行排烟。同时,监控中心接收到报警信息并显示在屏幕上。值班人员立即查看监控画面并确认火灾情况后,通过远程控制系统对消防风机进行进一步调整和优化。最终成功将烟雾排出建筑外部并有效控制了火势蔓延。这次演练充分展示了消防风机机电一体化监控系统的有效性和可靠性。

      消防风机机电一体化监控系统未来发展趋势

      随着物联网、大数据、云计算等技术的不断发展和应用,消防风机机电一体化监控系统也将迎来更加广阔的发展空间。未来,该系统将更加智能化和自动化,能够实现更加精准的环境监测和预测分析;同时还将与其他消防系统实现更加紧密的联动控制和信息共享;此外还将与智慧城市平台深度融合,为城市消防安全防护提供更加全面和有力的支持。

      综上所述,消防风机机电一体化监控系统作为防排烟应急自控系统的核心组成部分,在保障消防安全方面发挥着重要作用。随着技术的不断进步和应用场景的不断拓展,该系统将不断升级和完善,为城市消防安全防护提供更加可靠和有效的保障。


    0571-87774297