• 您好,欢迎来到泵阀网!
  • 请登录
  • 免费注册
  • [ 手机app ]
  • 添加收藏
西安亚川电力科技有限公司
  • 商铺首页
  • 公司介绍
  • 供应信息
  • 公司资讯
  • 客户留言
  • 联系方式
产品分类
  • -DTDS末端用电防护治理系统
  • -IBMS智能化集成管理平台
  • -事故通风管理系统
  • -空气流向管理系统
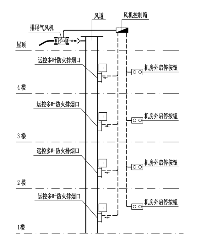
  • -消防风机机电一体化监控系统
  • -智能中线保护装置
  • -冷热源群控系统
  • -3D智慧数字孪生可视化平台
  • -电气综合监控系统
  • -能碳管理系统
  • -电力监控系统
  • -SVG无功补偿和APF有源滤波
  • -SF6六氟化硫气体监测
  • -智能平衡磁控节能装置
  • -电气防火限流式保护器
  • -能耗监控系统
  • -无线火灾报警自动灭火系统
  • -宿舍智能管理模块
  • -消防电源监控系统
  • -NTPS终端电气综合治理保护系统
  • -余压监控系统
  • -空气质量监测系统
  • -建筑设备监控管理系统
  • -智能照明控制系统
  • -浪涌保护器
  • -过电压保护器
  • -开关柜智能操控装置
  • -电气火灾
  • -电量变送器
  • -BAS楼宇自控系统
  • -电力仪表
联系方式
联系人:仵经理 (销售经理)
电   话:
手   机:
传   真:
友情链接
产品供应
  • SK-SE 防排
  • 消防风机机电一体
  • SK-AQ送(补
  • SK-HC手动控
  • SK-SD排烟专
  • SK-EC应急排
  • SK-SE防排烟
  • 消防风机机电一体
[首页][上一页][下一页][尾页] 当前是第 1 页 共1页8条 20条/页

网站首页 丨  供应产品 丨  公司简介 丨  公司资讯 丨  给我留言 丨  联系方式

西安亚川电力科技有限公司 地址:西安市翠花南路60号
版权所有:泵阀网 经营许可证:浙B2-20080178